Cécile Dinca
Architecte Diplômée d'Etat - Spécialisée dans l'architecture d'intérieur de l'habitat
MAISON H.
Réaménagement d'une salle de bain + Améangement pièces de vie- Limetz-Villez (27) - 50m²
Mission : Avant-Projet Définitif - 2025
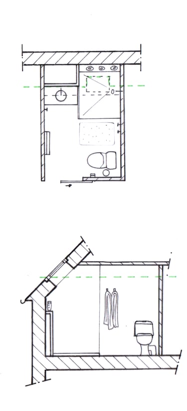
Pour ce projet, le couple voulait réaménager en sanitaire en une salle d'eau. L'optimisation de l'espace sous pente est indispensable pour un espace fonctionnel. Dans un but de faire à peu de frais, le wc est uniquement réorienté et non déplacé.
L'objectif : créer un espace optimisé pour un jeune couple primo-accédent.
Plan
Après




Avant
Plan
Coupe
Coupe


Après
Axonométrie
180cm
180cm
180cm
Avant
Après