Cécile Dinca
Architecte Diplômée d'Etat - Spécialisée dans l'architecture d'intérieur de l'habitat
MAISON G-T.
Réaménagement pièces de vies et réaménagement salle de bain et toilettes - Vernon (27) - 40m²
Mission : Avant-Projet Sommaire - 2025
Réorganisation complète des pièces de vie et de l'entrée étriquée. Une fluidité de circulation et des espaces mieux répartis permet l'optimisation des espaces, une entrée moins étriquée et plus lumineuse, et un espace fluide pour chaque usage.
L'objectif : créer un espace cohérent avec le mode de vie des habitants - un couple avec deux enfants en bas-âge.
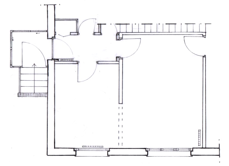
Avant
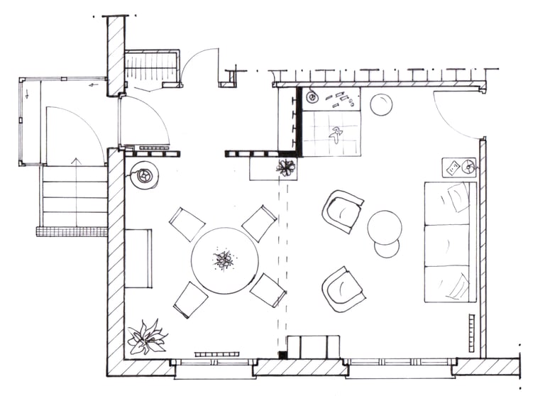
Après




Sas
Entrée
Salle à manger
Salon
Cuisine
Sas
Entrée
Cuisine
Salle à manger
Salon
Espace jeux
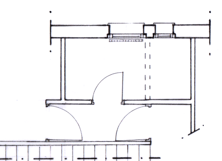
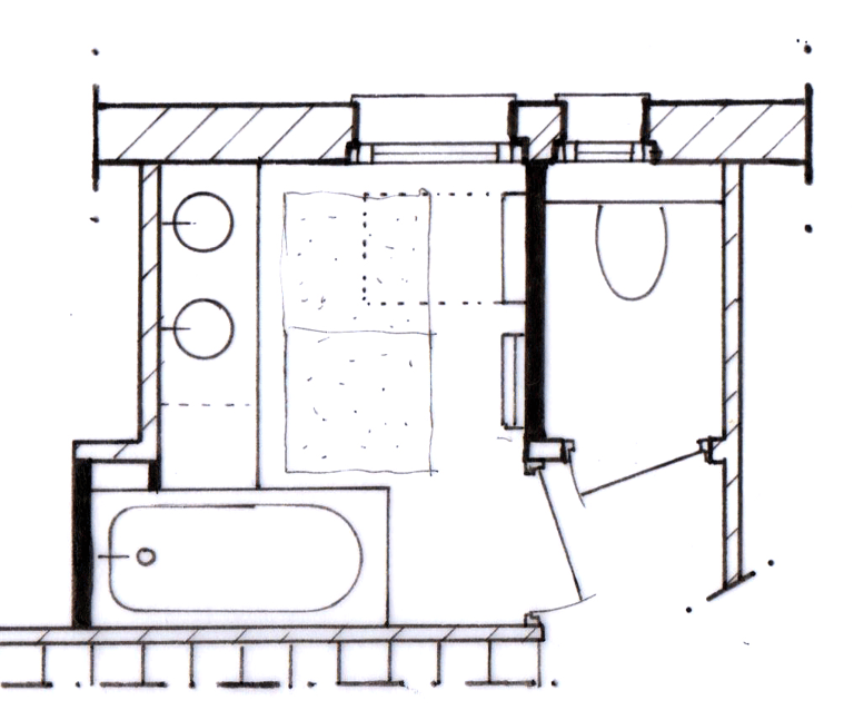
Pour la salle de bain, il s'agit de séparer la salle de bain et les toilettes, tout en annexant un couloir pour agrandir la salle de bain. La baignoire est un impératif, ainsi qu'une table à langer.
L'objectif : créer un espace optimal et cohérent avec le mode de vie des habitants - un couple avec deux enfants en bas-âge.




Avant
Après
Salle d'eau + wc
couloir
cuisine
cuisine
Salle de bain
wc
Table à langer murale
Baignoire