Cécile Dinca
Architecte Diplômée d'Etat - Spécialisée dans l'architecture d'intérieur de l'habitat
MAISON B.
Extension : agrandissement d'une chambre - La Bonneville sur Iton (27) - 20m²
Mission : Avant-Projet Définitif + Dépôt permis de construire - 2025
Pour ce projet, il s'agit d'agrandir la chambre de 9m² d'une étudiante. Sa chambre est encombrée et elle ne peut pas y mettre de bureau ni ses affaires d'équitation.
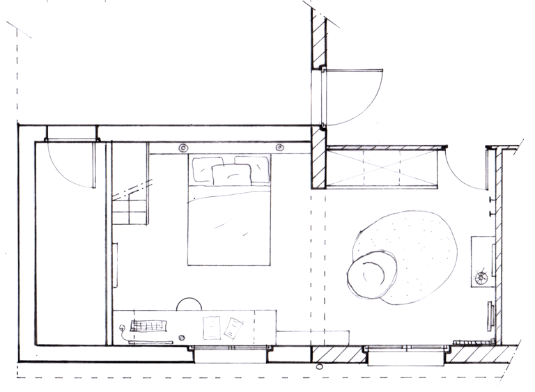
Le projet d'extension permet de doubler sa surface de chambre, et d'accoler un cellier. Le projet voulant aussi créer une terrasse abritée au devant de l'entrée, le projet vient extruder la toiture sur tout la surface. Une mezzanine est aménagée dans les combles perdus.
L'extension lui permet de combiner 3 espaces distincts :
Dans l'ancienne chambre, un dressing permettant de ranger enfin ses vêtements ainsi que son équipement d'équitation, une commode et un miroir en pied, indispensable !
Dans la partie extension, son lit avec une tête de lit maçonnée et un bureau pour travailler.
Dans la partie en mezzanine accessible par un escalier à pas japonais, un espace cocoon avec futon et bibliothèque pour se réfugier dans la lecture.
L'objectif : créer un espace optimisé pour une jeune étudiante férue de lecture, d'équitation et de déco.
Après
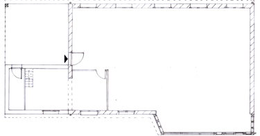
Avant
Plan RDC


Chambre


Plan RDC
Chambre
Cellier




Plan mezzanine détaillé de la chambre
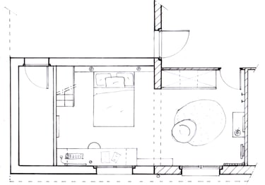
Plan RDC détaillé de la chambre
Combles perdus
Combles perdus
Vide sur chambre
Mezzanine
Dressing
Cellier
Accès mezzanine




Coupe sur la partie extension, regard vers l'entrée de la chambre
Coupe sur la partie extension, regard vers l'escalier d'accès à la mezzanine
Zone non concernée par le projet
Zone non concernée par le projet
Chambre